新闻动态
乳山市广润工程有限公司
地址:山东省威海市乳山市广州路52号
电话:0631-6328222
手机:13561890666
传真:0631-6328222
邮件:green_xingzheng@163.com
KAAN赢得阿姆斯特丹法院设计 新建筑将于2020年完工
发布时间:2016-6-12 点击数:
摘要:KAAN 将他们的设计描述为既“庄重威严”又“独特典雅”,旨在创建一座公共服务设施,理解法律制裁公开透明的工作过程,同时也让公众共同参与其中。

阿姆斯特丹法院设计
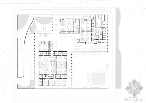
KAAN 建筑事务所赢得了设计新阿姆斯特丹法院的委托权。新建筑将取代现有位于 Zuidas 街和 Parnassusweg 街交叉口的司法综合体,该建筑计划被拆除。阿姆斯特丹法院是荷兰最大的法院,每年受理约15000桩案件,拥有200名法官和800专家。

阿姆斯特丹法院设计

阿姆斯特丹法院设计
为了营造开放的氛围,底层空间通过落地窗的设计变得可视化,且允许民众进入法院的一系列空间,也包括了内院。为了进一步增强参与感,内部空间布局与街道外部条件产生过渡,创造出一个前院、中央大厅,以及等待区,是城市肌理的延伸。然而,建筑师也同时为使用者营造出最大限度的私密性,为法官、工作人员和行政代表提供庇护区和内部通道。

阿姆斯特丹法院设计

阿姆斯特丹法院设计

阿姆斯特丹法院设计
总体上,建筑容纳有50个法庭和理事会会议厅,全部为自然采光。底层的大型法庭将受理大型案件,容纳更多观众,并有特定的入口以免影响其它法庭中正在进行的案件审判。

阿姆斯特丹法院设计
新法院也将融合多个花园和景观,包括位于底层的内院、攀附在各层办公室的垂直花园,以及在建筑的西侧,下沉式的景观设计为地下层空间提供自然采光。

阿姆斯特丹法院设计

阿姆斯特丹法院设计
在现有法院拆除过程中,工作人员将搬至街坊中的临时办公场所。新法院预计于2020年竣工。
[ 乳山市广润工程有限公司创业于2004年,主要从事土木建筑、水电暖安装、园林绿化、钢结构工程、公路工程施工、房产测绘、地籍测绘等 ]
上一篇:工程设计行业迎来互联网+新模式
